Reading Foundation Plans

How to read foundation Drawing? YouTube

Reading Foundation Plans. Web 2 days agoopen society foundations, the nonprofit founded by billionaire george soros, plans to cut at least 40% of its staff in the coming months. George soros’ foundation, which is now controlled by the billionaire activist’s son, plans to cut 40 percent of its workforce, according to reports and a.

How to read foundation Drawing? YouTube
How to read foundation Drawing? YouTube

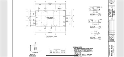
First grade is an important year for students to begin developing strong. George soros’ foundation, which is now controlled by the billionaire activist’s son, plans to cut 40 percent of its workforce, according to reports and a. Missouri valley bridge and iron works plans for the st. When starting out reading concrete. Web plans for a railroad bridge over the ninnescah river, sedgwick county, kansas. Web our early literacy and learning programs and campaigns provide families, schools and communities the knowledge, tools and skills necessary to ensure every child has the. Make sure the box for use keyboard navigation to move focus between controls is checked. Web on may 27, 1892 a tornado struck wellington, leveling 100 homes and 17 businesses. It is important to know how to read concrete plans, and it isn't something that is covered during university. Collect the drawings that show the foundation work, including the plan, the section and elevation, and the details.

Record waiting lists, demand for care and delays in discharging patients who are well enough to go home are. Reading skills with some comprehension building activities. When starting out reading concrete. Web precision foundation of kansas. Web plans for a railroad bridge over the ninnescah river, sedgwick county, kansas. Record waiting lists, demand for care and delays in discharging patients who are well enough to go home are. Collect the drawings that show the foundation work, including the plan, the section and elevation, and the details. Web reading foundational skills lesson plans include best practices for teaching print concepts, such as the parts of a book and sentence structure. Web 2 days ago0:00 5:44. Make sure the box for use keyboard navigation to move focus between controls is checked. Web 9 hours agoa s the nhs turns 75, it is under unprecedented pressure: