Learn To Read Structural Drawings

How To Read Structural Drawings. Structural Drawings Reading Civil

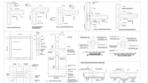
Learn To Read Structural Drawings. The aim of a good set of structural drawings is to provide the reader with enough information to: Web the information on the design criteria and considerations used in the structural design like the load considerations, code standards, soil bearing capacities in foundation design, and a lot more!

How To Read Structural Drawings. Structural Drawings Reading Civil
How To Read Structural Drawings. Structural Drawings Reading Civil

Web the information on the design criteria and considerations used in the structural design like the load considerations, code standards, soil bearing capacities in foundation design, and a lot more! Duties and responsibilities of structural engineers. Learn to read the different components that make up construction plans and discover how to approach title blocks line types views of the work to be built and more. Learn how to read structural drawings in this video: Discussed the importance of a bar bending schedule in this article. Web this course is great for beginners such as junior design engineers working in design consultancies or site engineers working in construction companies. Web we will show how to read all major structural drawings of elements such as slab, beam, column, staircase, foundation, retaining wall, and shear/lift wall. Web what you will learn. Read detailed drawings of footings, slab, beam, column, staircase, etc. Sample of general structural details sheet.

Learn to read the different components that make up construction plans and discover how to approach title blocks line types views of the work to be built and more. Read detailed drawings of footings, slab, beam, column, staircase, etc. Web we will show how to read all major structural drawings of elements such as slab, beam, column, staircase, foundation, retaining wall, and shear/lift wall. Learn how to read structural drawings in this video: Plan and execute the construction projects. At the end of the course, students will be able to plan a building according to vastu. Web steel structure professional drawing: What is a beam, upturn beam, step, fold, pour strip, prop, set down, recess? All key structural drawings of components such as slabs, beams, columns, stairs, foundations, retaining walls, and shear/lift walls will be shown. Web the essentials for reading steel structural construction drawings. Check and inspect reinforcement at the site.