How To Read Structural Plans

Structural Drawing Of Wall Sections Dwg File Cadbull

How To Read Structural Plans. Web we would like to show you a description here but the site won’t allow us. 8 elements to read a floor plan how to read a floor plan?

Structural Drawing Of Wall Sections Dwg File Cadbull
Structural Drawing Of Wall Sections Dwg File Cadbull

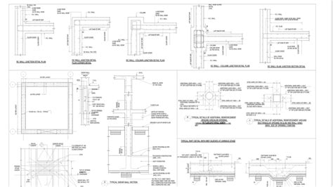
The intent of this video is to provide insight into. These can come in many forms: For this plan to be official it would need a licensed professional engineer’s stamp and signature. Web a structural steel drawing has some key components. Most include a cover page, time block,. Reading construction blueprints & plans | #1 mattbangswood 1m views 7 basic points for civil engineers | basic knowledge for civil engineers | civil engineering. Web we would like to show you a description here but the site won’t allow us. Web up to 10% cash back you will learn how to read the structural drawings of the slab, beam, column, staircase, etc. Get one month free at linkedin learning. A floor plan is your.

8 elements to read a floor plan how to read a floor plan? Web a brief tour of a set of structural design drawings for a building from the perspective of a structural engineer. Most include a cover page, time block,. For this plan to be official it would need a licensed professional engineer’s stamp and signature. A floor plan is your. The intent of this video is to provide insight into. A structural plan relays important. Learn and decodes the drawings like an expert. Web 5.3k 159k views 2 years ago reading construction drawings is such a big part of being in the construction and engineering industry. Web a structural steel drawing has some key components. Per al.com, beef cattle took shelter from a.