How To Read Floor Plan Dimensions

How to properly read floor plans and what details to look for.

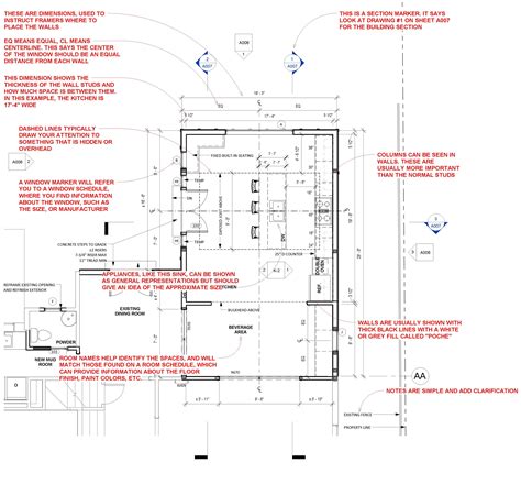
How To Read Floor Plan Dimensions. It’s certainly an exciting endeavor, and one of the most important aspects of a new build are the floor plans, which show you all the details and measurements within your new space. You’ll also notice thinner solid lines that represent interior walls separating rooms or sectioning off spaces in a single room.

How to properly read floor plans and what details to look for.
How to properly read floor plans and what details to look for.

Then, look for any interior walls that divide the room into separate spaces. Take for example, in a typical floor plan you will see 23:25, which signify that 2:3 meters height by 2:5 meters width. Each measurement is defined by termination symbols, such as hash marks or arrows, which indicate the element being sized up. Web how to read floor plans a floor plan layout on blueprints is basically a bird's eye view of each floor of the completed house. Web for most floor plans, the window measurements are displayed as four digits numbers—usually the first two digits signifies the height of the specific window and the second set is the width. You’ll also notice thinner solid lines that represent interior walls separating rooms or sectioning off spaces in a single room. Web 06.01.2022 15:32, last updated 28.02.2023 18:25 floor plans with dimensions give you an idea of the space available and are incredibly helpful when it comes to visualizing the layout. Most floor plans will have a legend to help you read what is included in the drawing. Allowing you to showcase the spectacular potential of your property or get started on your latest home renovation project. Web to read floor plan dimensions, first find the measurements for the room’s walls, which will give you the overall square footage of the space.

Then, look for any interior walls that divide the room into separate spaces. Take for example, in a typical floor plan you will see 23:25, which signify that 2:3 meters height by 2:5 meters width. Web to read floor plan dimensions, first find the measurements for the room’s walls, which will give you the overall square footage of the space. Here are a few common representations you’re likely to encounter in your plans: Jen chinburg your guide to reading floor plans it’s happening — you’re looking to build your own home! Allowing you to showcase the spectacular potential of your property or get started on your latest home renovation project. You’ll also notice thinner solid lines that represent interior walls separating rooms or sectioning off spaces in a single room. Measure the dimensions of these walls and the spaces they create. A sign of a compass on the floor plan will point to the north. It’s certainly an exciting endeavor, and one of the most important aspects of a new build are the floor plans, which show you all the details and measurements within your new space. Web how to read floor plans a floor plan layout on blueprints is basically a bird's eye view of each floor of the completed house.