Blueprint Reading For Welding

Blueprint Reading For Welders And Fitters Answer Key matheasysite

Blueprint Reading For Welding. They are the front view, the. You could learn on your own, but if you are experienced in welding, you may be tempted.

Blueprint Reading For Welders And Fitters Answer Key matheasysite
Blueprint Reading For Welders And Fitters Answer Key matheasysite

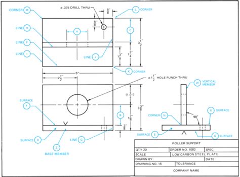
Web in reading blueprints for welders, students will learn about the following: Web 204k views 10 years ago. That’s why we’ve broken down the process into bite size chunks. Web fundamentals of welding blueprints. Web this online welding course explains how to read, use, and make blueprints. Web a welding blueprint is created to present the precise expectations of a certain project. This is a short clip to demonstrate blueprint reading for welders and fitters as taught by hobart institute of welding technology. Demonstrate the use of metric and inch measurement,. Web when learning how to read welding blueprints, it’s important to understand the difference between a weld symbol and a welding symbol. Discusses types of welds, weld joints, and weld symbols.

They are the front view, the. A glance at a welding blueprint will show that there are three basic types of views in a blueprint. That’s why we’ve broken down the process into bite size chunks. Web fundamentals of welding blueprints. You could learn on your own, but if you are experienced in welding, you may be tempted. I teach a combination of welding lecture and lab classes for smaw,. Web may 5, 2022 by brandon fowler learning to read blueprints can be hard. Discusses types of welds, weld joints, and weld symbols. Web this is an entry level blueprint reading book written for the first year welding student. Web 204k views 10 years ago. Web reading welding blueprints is something you need to be taught properly.